Below are some examples of the types of efficient, sustainable, and healthy homes we’ve designed.
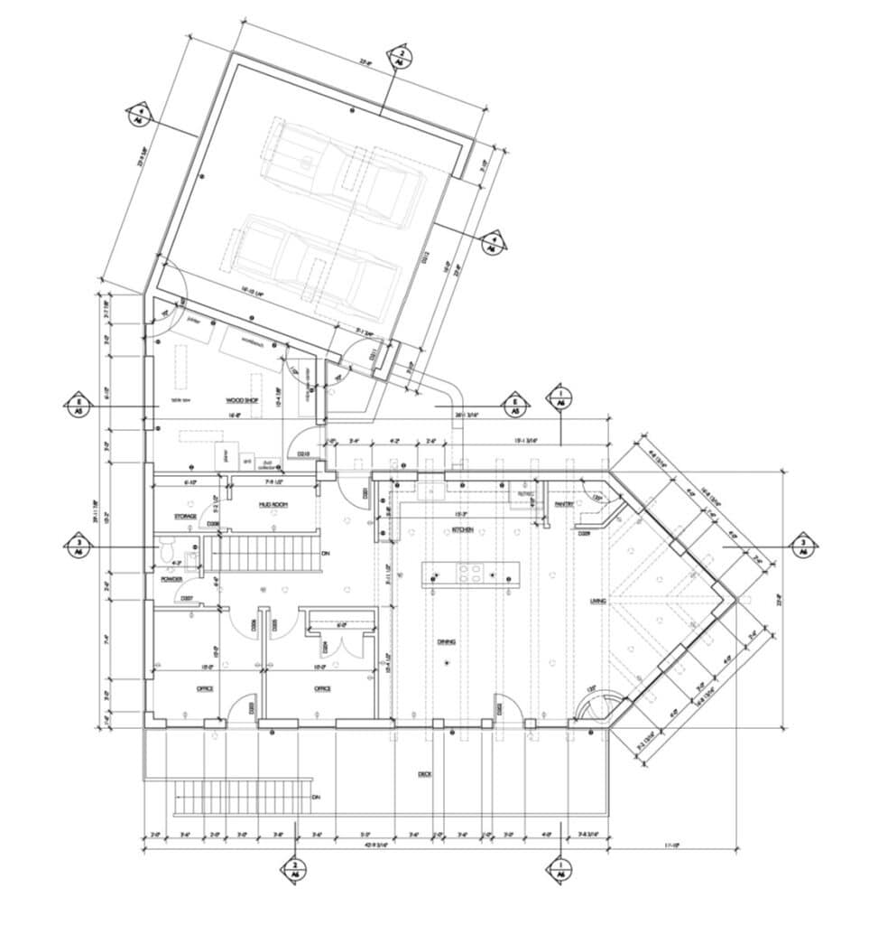
Mountain Living
Type: Single family residence
Location: Evergreen, CO – 8200 ft
Size: 2300 SF
Status: Completed
Construction Type: Insulated Composite Concrete Form (ICCF)
Certifications: Designed to PHIUS standards (not certified)
Pros:
- Highly insulating, R-46 walls, ceiling R-72, very low energy use – very low operational carbon
- Highly fire resistant – Huge bonus in our fire prone region, significant insurance break
- Made from recycled Styrofoam, kept 50,000 lbs of Styrofoam out of the landfill
Cons:
- Relatively high embodied carbon
Despite their large size, the blocks are lightweight, only weighing 40-50 pounds each depending on size. This makes using the blocks easy for construction crews or the DIYer.
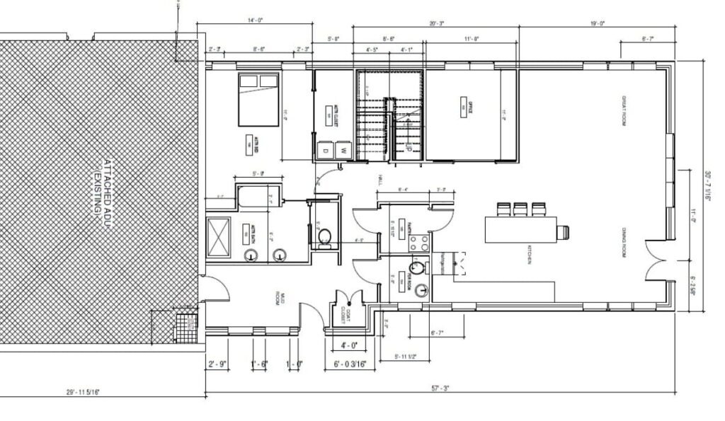
City Living – Making the most of a long, narrow lot
Large flat roof(s), ideal for bar-b-ques, patio parties, and star gazing.
Type: Single family residence with attached Auxiliary Dwelling Unit (ADU).
Location: Boulder, CO – 6500 ft
Size: 2600 SF (Main Residence) plus 800 SF (ADU)
Status: Under Construction
Construction Type: Double stud wall with Cementous siding
Certifications: Designed to PHIUS standards (certification in progress)
Pros:
- Highly insulating, R-46 walls, R-72 roof, very low operational carbon
- Highly fire resistant, non-combustible walls and roof
Cons:
- Moderate embodied carbon


